What are we hoping to build?
We are seeking the public’s views on a proposal to extend the Shrewsbury Sports Village by adding a new swimming centre and new fitness and leisure facilities. This will include:
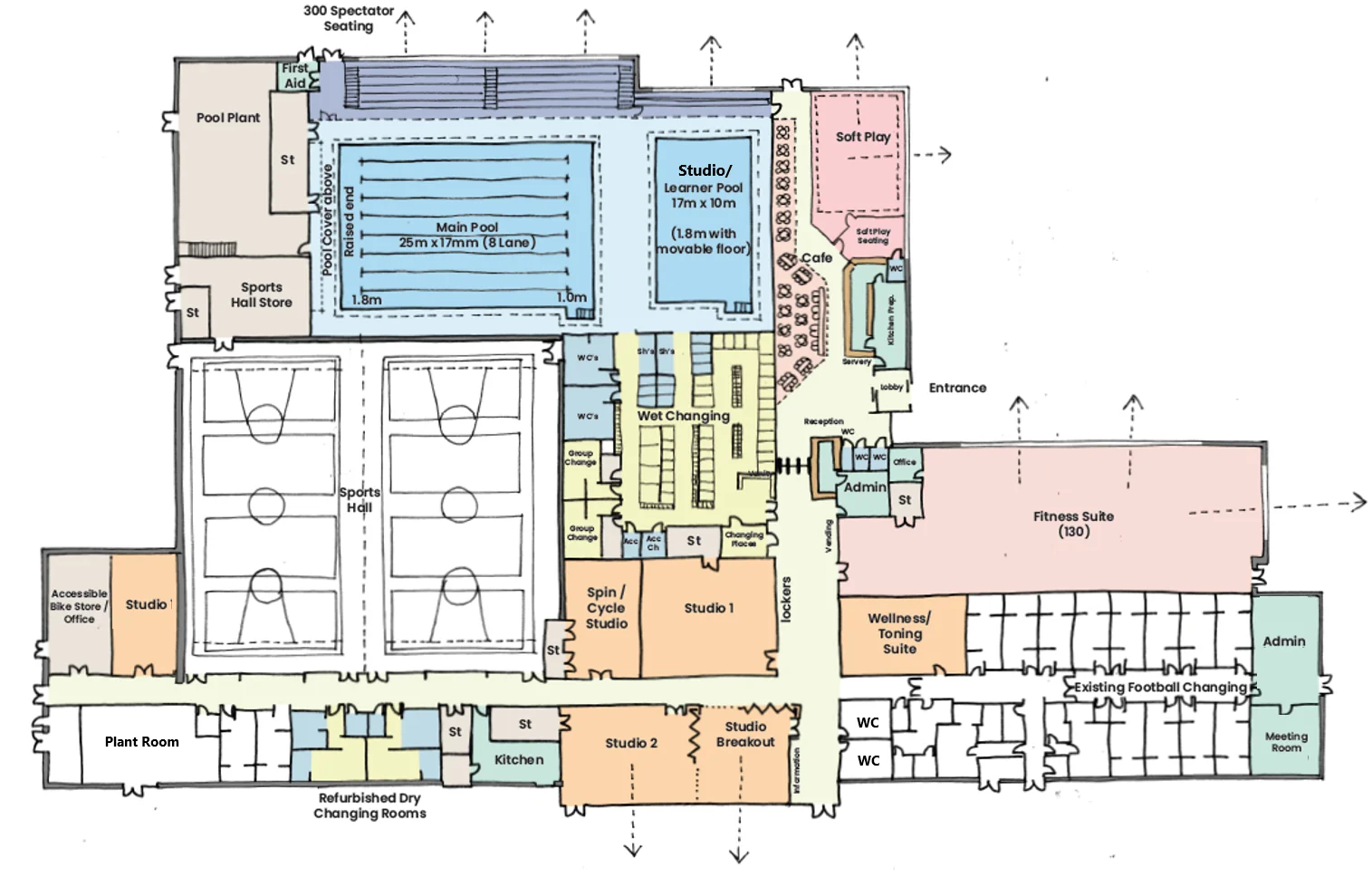
- 25m x 8 lane competition standard pool (1m – 1.8m depth)
- Easy access steps and pool pod for wheelchair users
- Spectator seating for club and county competitions and gala
- Studio pool 17m by 10m with moveable floor and water party
- Unisex changing village, with two group changing rooms
- Changing Places facility
- Soft play and café
- Fitness gym with 130 stations and new cycle spin studio
- Two dance studios and a toning suite
- All other sports facilities will remain in place

Please note: This consultation is solely about the proposals for the Shrewsbury Sports Village. We want to stress that no decisions have been made about the future of the Quarry Pool and Fitness Centre. The future of the Quarry will be the subject of a separate study and public consultation in due course.
The proposed facility mix needs to attract the widest possible range of users
The new facilities need to appeal to all ages, abilities and interests. By meeting modern access standards, the sports village will be more inclusive. More visitors will make the sports village financially sustainable which is vital if leisure facilities are to be maintained.












Project Timeline
- Time period
- January 2024
- Action
- Council Cabinet approved an 8-week public consultation (15th March - 9th May 2024).
- Time period
- Summer 2024
- Action
- Consultation results guide the Cabinet and Full Council on whether to approve and fund the project.
- Time period
- Summer 2025
- Action
- If approved, design and planning would take approximately one year.
- Time period
- Summer 2027
- Action
- If approved, construction is estimated to take approximately 18-24 months.
- Time period
- Winter 2027
- Action
- The transformed Shrewsbury Sports Village could open late 2027 or early 2028.
Initial design proposals
Building costs have risen dramatically in recent years and so in Autumn 2022 we set out to plan a cost-effective single storey extension to the Shrewsbury Sports Village with a target capital budget of £27 - 28 million. Architects Roberts Limbrick were commissioned through the UK Leisure Framework to complete a high-level feasibility study to see if this was practical. Their design proposals are set out below:



Transforming Shrewsbury Sports Village
More users needed for long term viability
The Sports Village, while catering well to traditional sports, relies on our subsidies to survive as it struggles financially due to low customer numbers. Investing capital funds in new facilities will attract more users, generating income to offset the investment and improve its financial sustainability. The transformed facility would result in:
Improved accessibility
It would meet disability access standards and provide much improved accessibility through:
- A level single storey facility
- New disabled changing and Changing Places facility
- Easy access steps and Pool Pods on both pools
- A toning studio so those with mobility issues can exercise
Swimming Competitions
The Amateur Swimming Association has long advocated for a competition-standard pool in Shropshire. A new pool meeting Swim England standards would allow Shropshire to host county-level competitions and galas, eliminating the need for swimming clubs to travel to Wolverhampton or Sandwell.
Carbon neutrality
Traditional gas-heated pools are costly and environmentally harmful. To reach our 2030 carbon neutrality goal, a new all-electric pool with good insulation, heat pumps and photovoltaic solar panels is needed. This facility will meet BREEAM sustainability standards and offer EV car charging.
Swimming lessons and facilities for families
Schools are legally obliged to provide swimming lessons, so a good, accessible pool is crucial. The transformed Sports Village would offer easy coach access, efficient heating and a new studio training pool with accessible steps. The moveable floor and party module can help boost children’s confidence and enjoyment in water.
The sizeable café, overlooking the studio pool and adjacent soft play area, will make an attractive destination for parents.
Competition standard pool
Shropshire lacks a competition-standard swimming pool, despite the popularity of the sporting activity and the county's annual championships and galas, which currently require travel to Wolverhampton or Sandwell. The proposed new pool would address this need by meeting Swim England competition standards.
Raised ends
Starting blocks in the deep end with automatic timing will allow competitors to qualify for regional and national events.
8 lane by 25 metres
The pool's high-quality construction and regulation 25.05m length will accomodate competition-grade timing pads. Its eight-lane design will allow for versatility beyond competitions.
Seating for competitors and spectators
To host county championships and major events, the pool hall must accomodate up to 250 competitors and 250 spectators.
Good accessibility and parking
Conveniently located off the A49 Shrewsbury eastern by-pass, the facility offers ample parking for competitors and is easily accessible for county clubs.

Location
Shrewsbury Sports Village is located to the Northeast of Shrewsbury town centre in Sundorne. It is accessible via Sundorne Road and is only a few hundred metres from Shrewsbury’s ring road, the A49. The Shrewsbury Sports Village shares its site and car park with Shrewsbury Bowls Centre. There is also a small overflow car park to the East of the main car park. Sundorne Youth Centre is located to the East further along Sundorne Road. A health centre has also been constructed to the Northeast of the sports village which is separately accessed via Sundorne Road.
The site address is Shrewsbury Sports Village, Sundorne Rd, Shrewsbury, SY1 4RQ.


Shrewsbury Sports Village was opened in 2005 by the former Shrewsbury and Atcham Borough Council. Now owned by Shropshire Council, its development was part-funded by Sport England and the Football Foundation. The site includes 16 football pitches and changing rooms, with grant terms protecting this football provision for several years.
Site access
The Sports Village has good car access with public transport and cycle routes.
Car parking
The Sports Village currently offers an ample 340 parking spaces. The development will reduce spaces by 114 but add 37 new ones near the Bowls Hall. Additional parking and overflow options are available if needed.
A detailed transport study, including traffic and parking demand modelling, will be conducted in the next project phase.
Public transport
The Sports Village is currently served by the number 24 bus route, providing a direct link to and from Shrewsbury bus station. If the project is approved, we will explore options to further enhance public transport offerings.
Walking and Cycling
The Sports Village benefits from cycle paths like National Cycle Route 81 (along the old canal) and local routes on Sundorne Road. Our Local Cycling and Walking Infrastructure Plan seeks to improve cycling access, increasing leisure opportunities, particularly for communities like Sundorne, Harlescott and Castlefield where car ownership is lower.